Domy energooszczędne - Dolny Śląsk

Domy energooszczędne zyskują na popularności dzięki swojej efektywności energetycznej i nowoczesnym rozwiązaniom technologicznym. Inwestorzy coraz częściej decydują się na takie budynki, które nie tylko obniżają koszty eksploatacji, ale również przyczyniają się do ochrony środowiska. Domy energooszczędne na Dolnym Śląsku charakteryzują się nie tylko niskim zużyciem energii, ale także estetycznym designem i funkcjonalnością. Dzięki temu mieszkańcy mogą cieszyć się zarówno oszczędnościami na rachunkach, jak i wysokim standardem życia. Proekoart, z siedzibą we Wrocławiu, specjalizuje się w budowie domów energooszczędnych na terenie Dolnego Śląska. Firma oferuje kompleksowe usługi od projektu po realizację pod klucz, zapewniając indywidualne podejście do każdego klienta.
Czy możliwe jest połączenie funkcjonalności, estetyki, wygody i natury w jednym? Przykładem na to są oferowane przez nas nowoczesne domy energooszczędne pod klucz, które powstają we Wrocławiu. Wyjątkowe i indywidualnie dopasowywane projekty domów energooszczędnych tworzymy w naszej siedzibie, która znajduje się we Wrocławiu. Każdy z obiektów, który wychodzi spod ręki naszych architektów, jest dokładnie przemyślaną koncepcją. W naszej firmie troszczymy się o każdy drobiazg związany z rozplanowaniem przestrzennym, jak i innymi elementami ważnymi zarówno na etapie planowania, jak i wykonania. Dotyczy to m.in. ilości okien, wielkości poszczególnych pomieszczeń i ich odpowiedniego usytuowania pod względem kierunków świata, zgodnie z zasadami energooszczędnymi. Warto zaznaczyć, że proponowane przez nas domy energooszczędne pod klucz są tak projektowane i konstruowane, aby zawsze zapewnić maksymalne nasłonecznienie i zysk ciepła.
Aby poznać bliżej nasze domy energooszczędne i projekty, jakie proponujemy w ich zakresie, warto prześledzić naszą stronę internetową, na której prezentujemy wykonane już zlecenia. Śledzimy aktualne trendy panujące w budownictwie i architekturze wnętrz. Dzięki temu możemy zaoferować klientom z zawsze będące na czasie, nowoczesne domy energooszczędne i korzystne ceny.
Dolny Śląsk – atrakcyjne ceny domów energooszczędnych
Powierzając naszej wrocławskiej firmie zaprojektowanie nowoczesnych domów energooszczędnych, masz pewność, że stworzymy wyjątkową i przemyślaną przestrzeń. Domy energooszczędne pod klucz, które proponujemy, to propozycje zarówno minimalistycznych form, jak i kompozycji bardziej bogatszych.
Jeśli zastanawiasz się, jakie są ceny za domy energooszczędne na Dolnym Śląsku, skontaktuj się z nami. Dowiesz się zarówno tego, ile kosztuje wykonanie projektu, jak i sama budowa obiektu pod klucz. Możesz nam zlecić kompleksowe wykonanie lub tylko jeden z tych elementów. Podczas budowy domów energooszczędnych pod klucz korzystamy z najnowszych technologii. Decydując się na takie rozwiązanie, możesz być pewien, że będzie to inwestycja, która szybko Ci się zwróci.
Być może przeglądając proponowane przez nas domy energooszczędne, które zamieściliśmy w naszej galerii, wyszukasz dom swoich marzeń? Zapraszamy do naszego biura w mieście Wrocław i do… współpracy! Gwarantujemy solidnie wykonane domy energooszczędne!
Domy energooszczędne we Wrocławiu
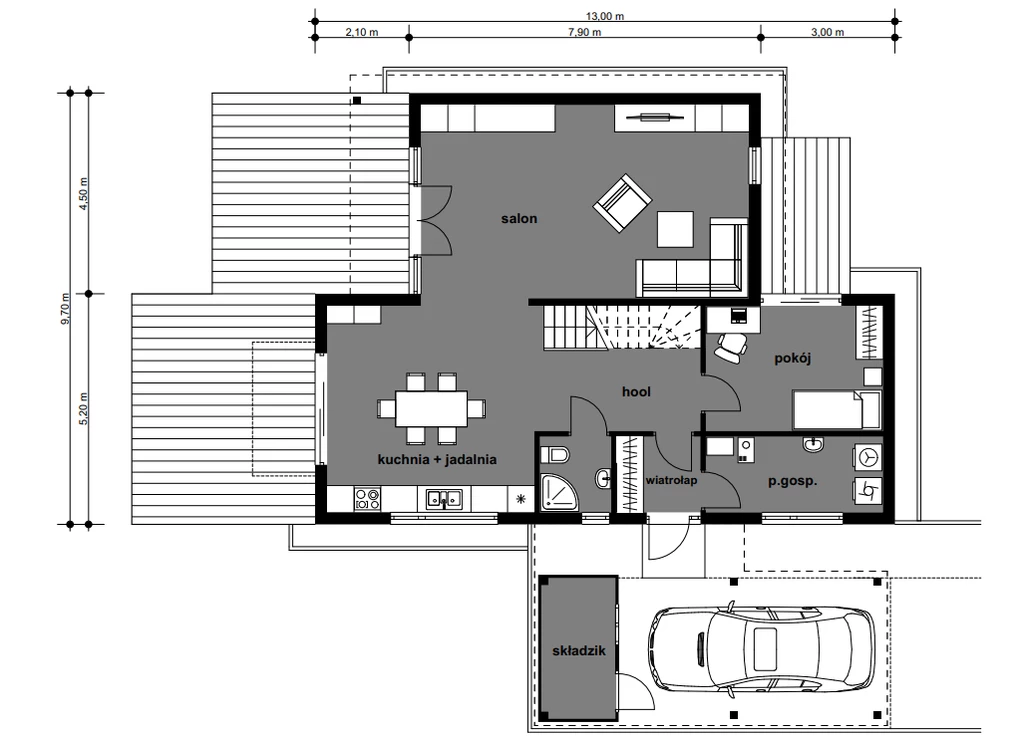
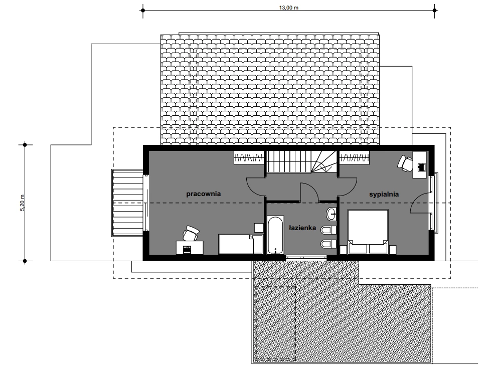
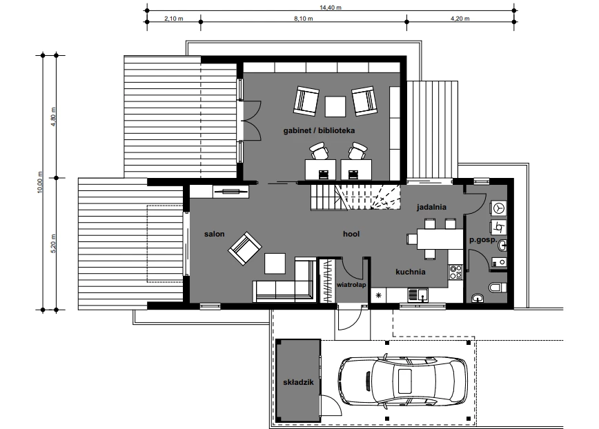
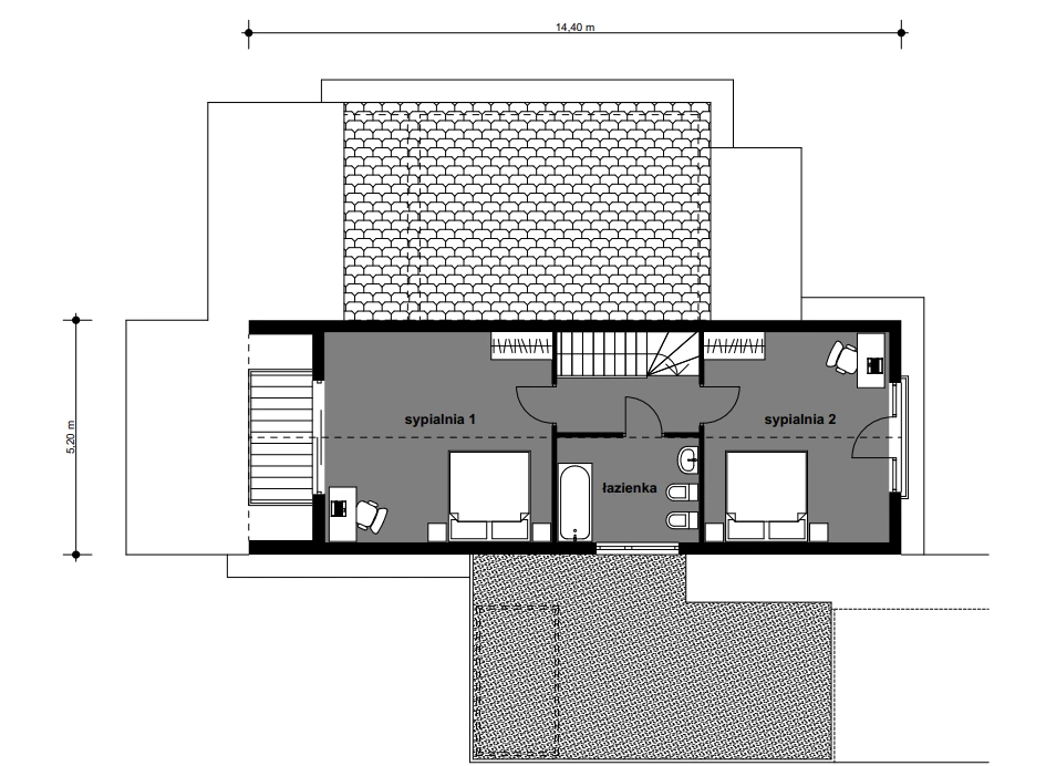
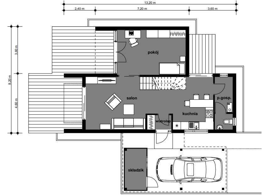
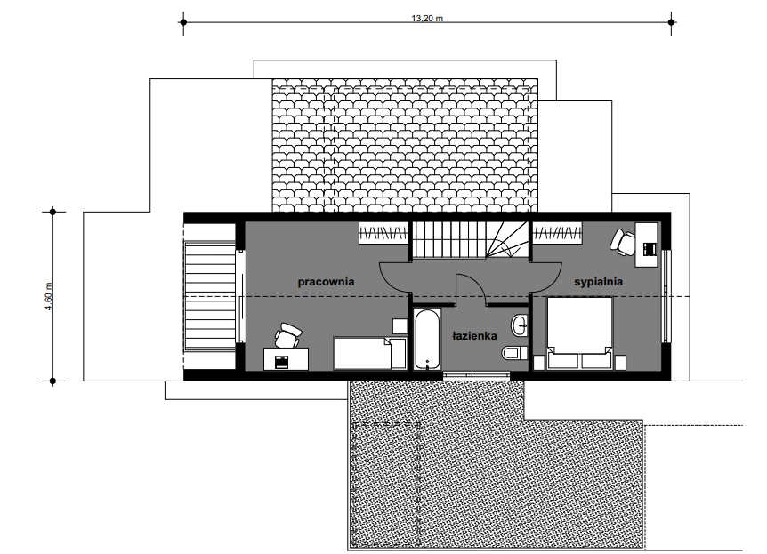
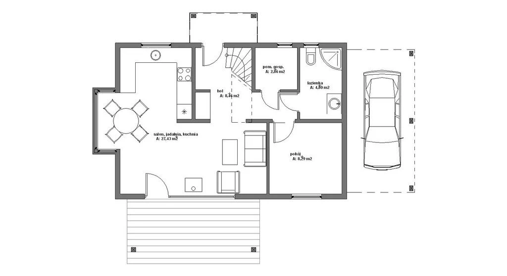
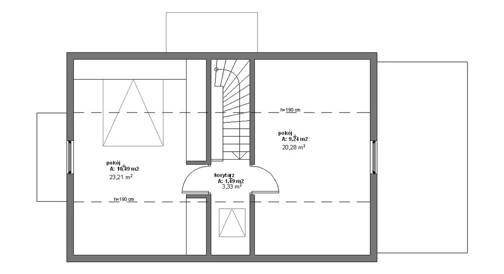
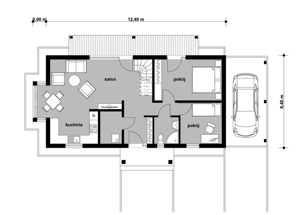
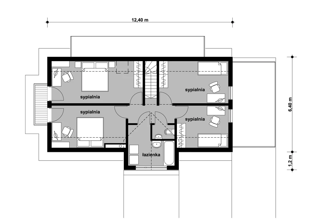
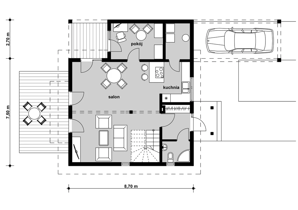
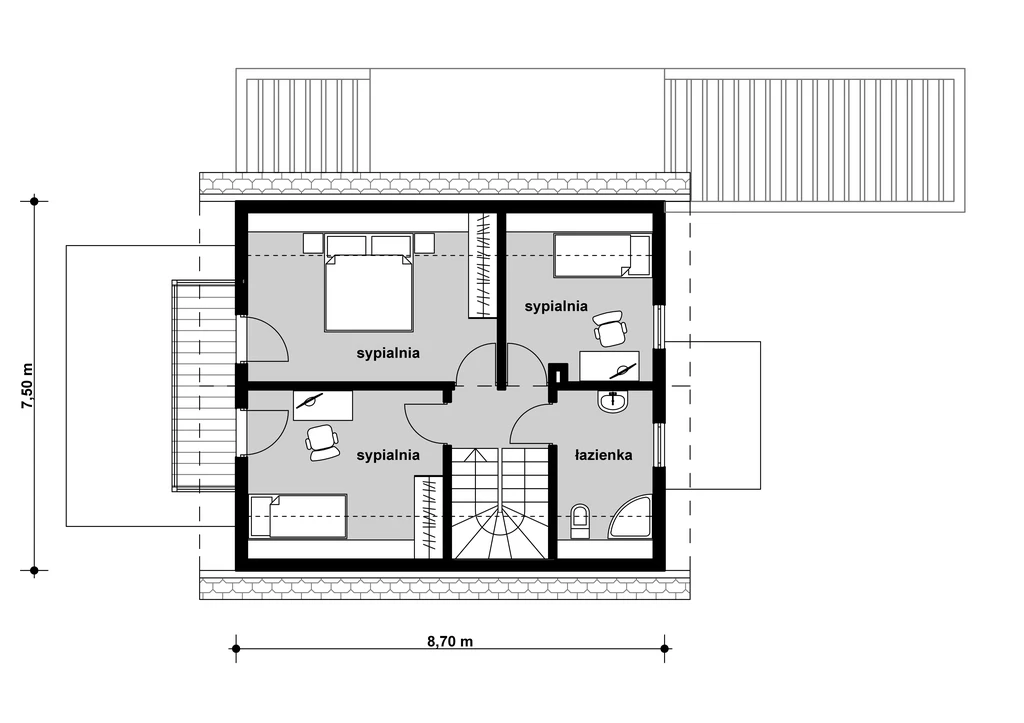
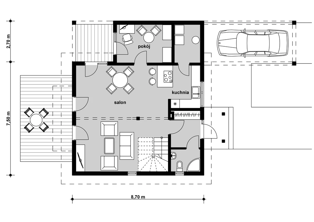
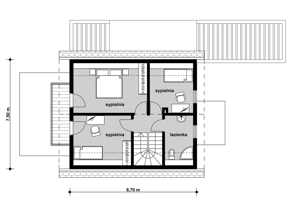
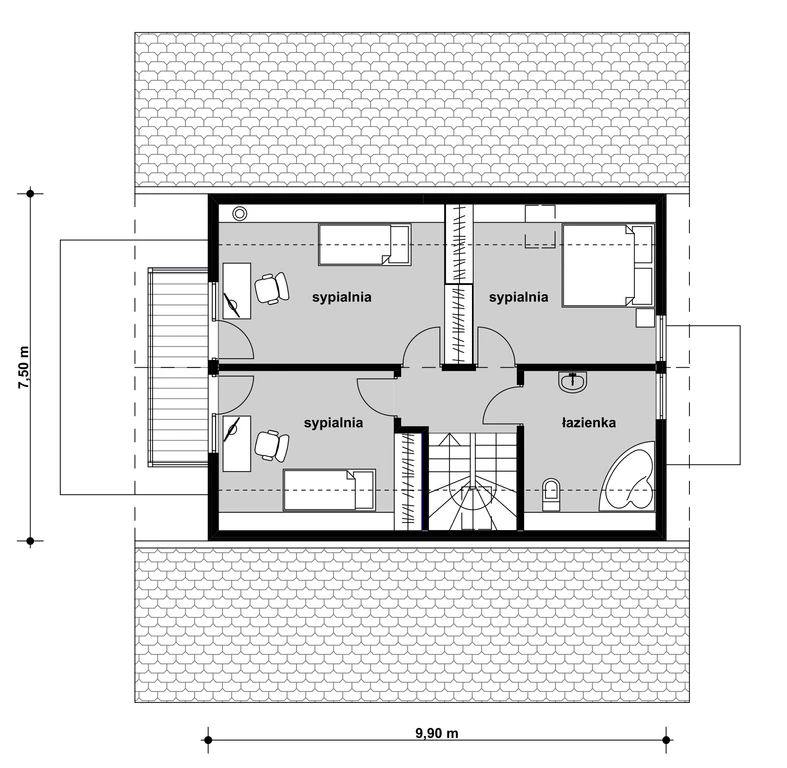
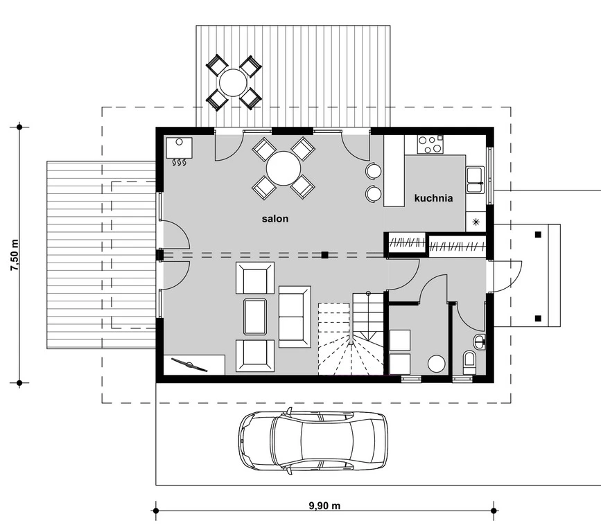
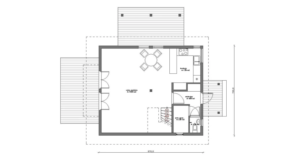
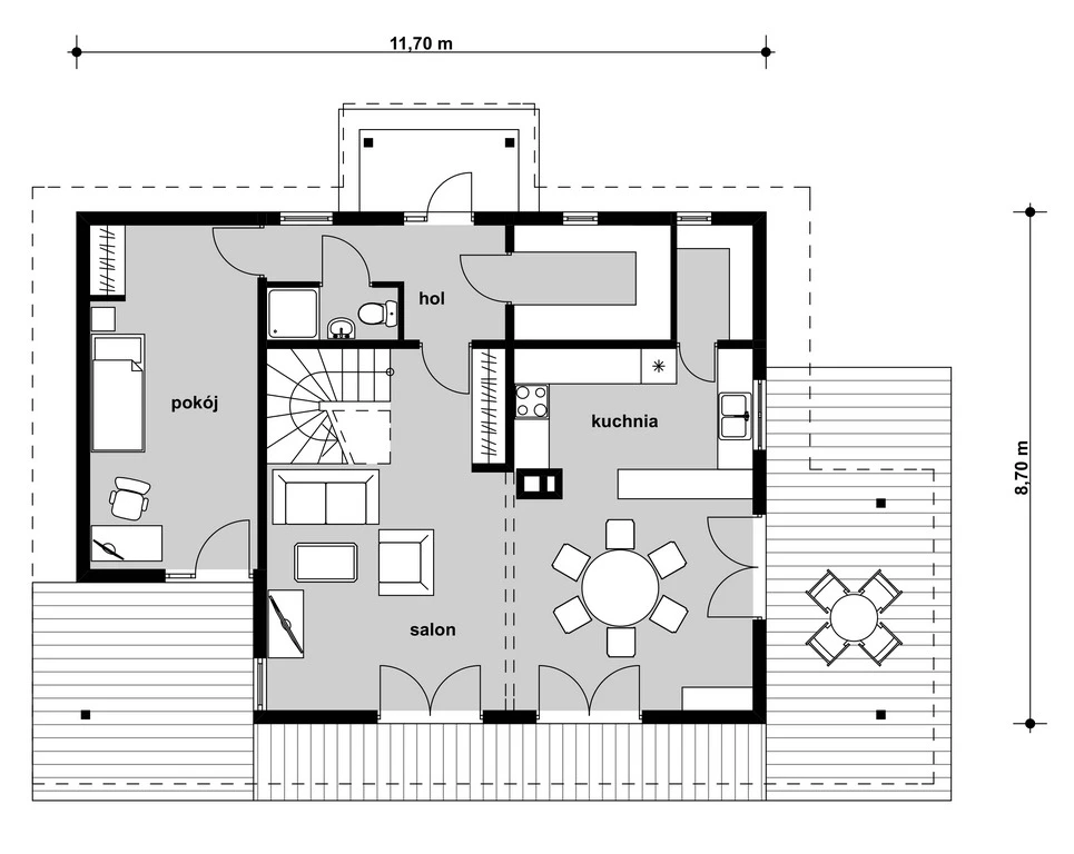
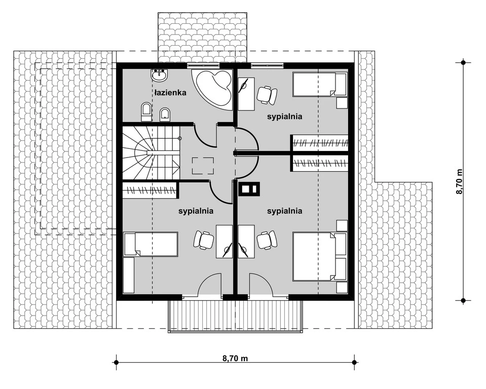
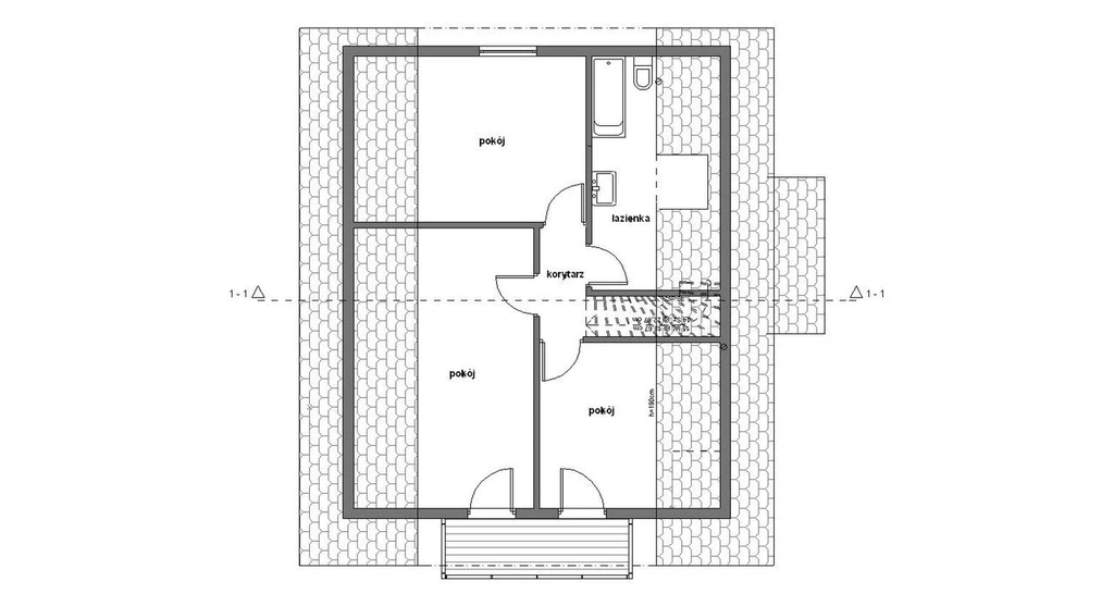
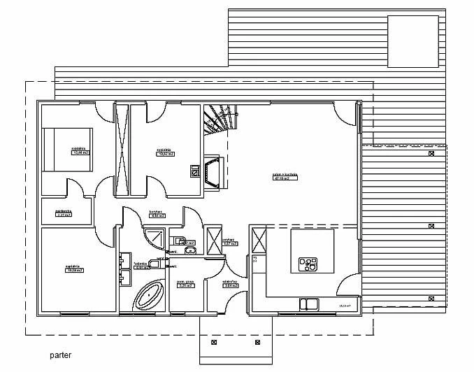
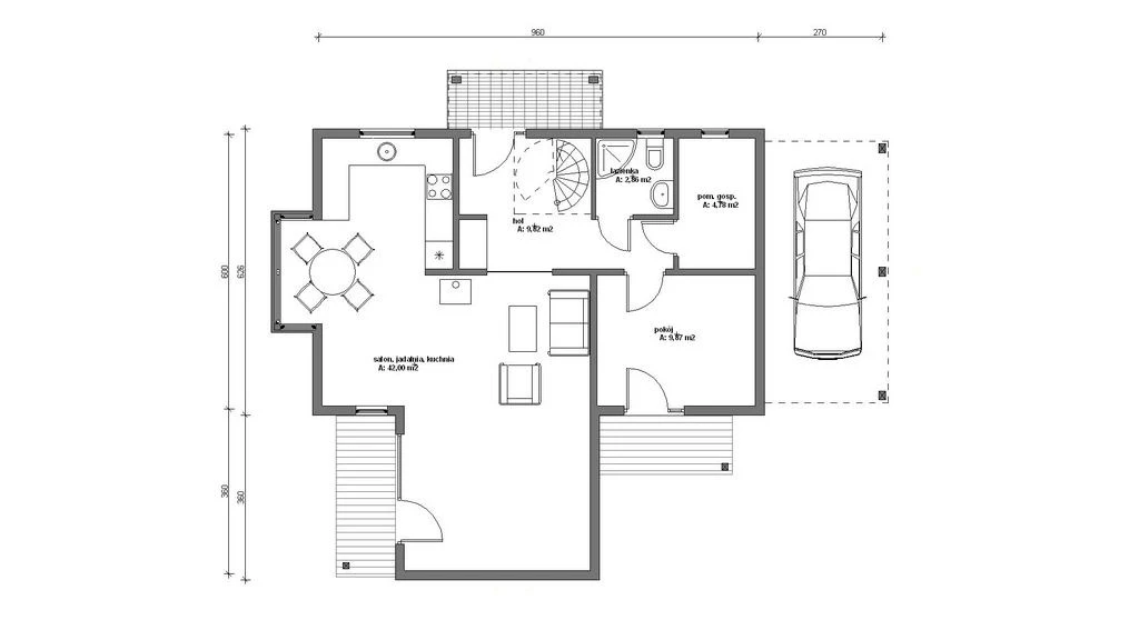
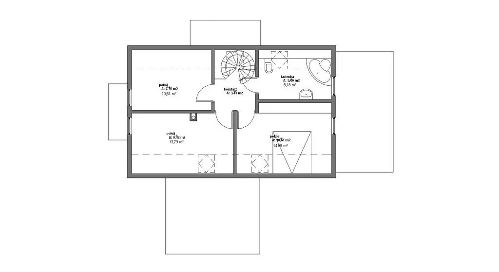
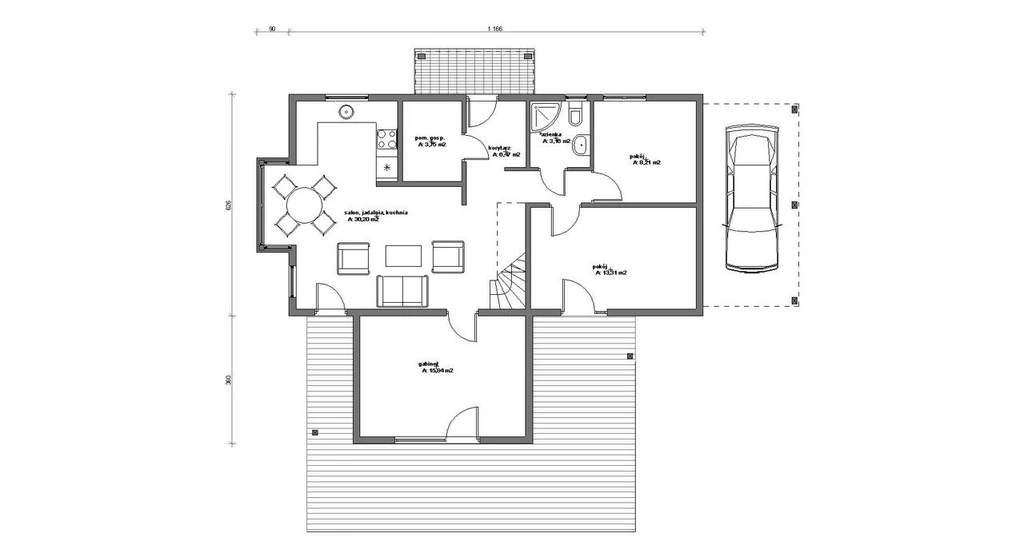
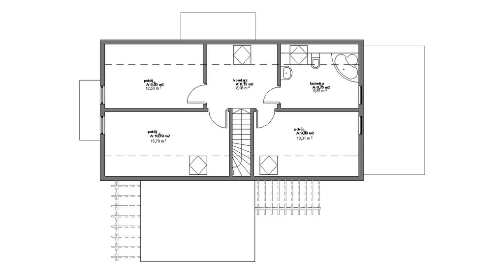
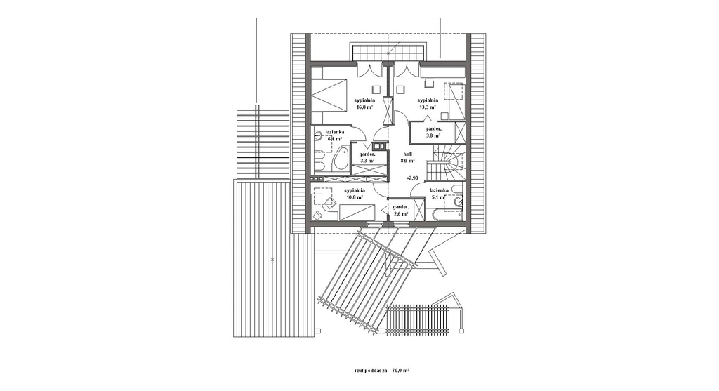
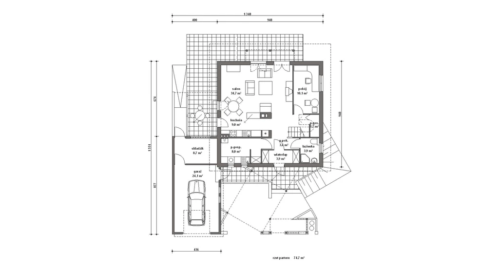
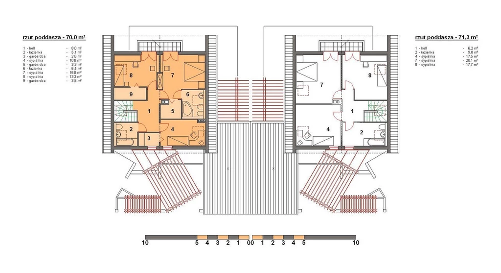
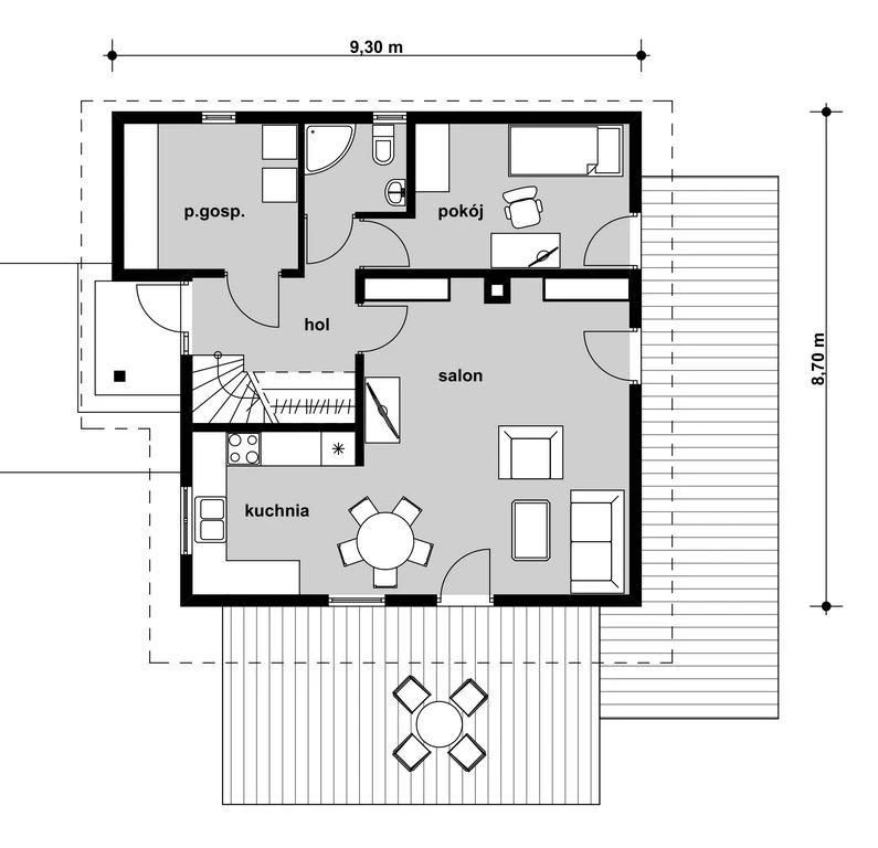
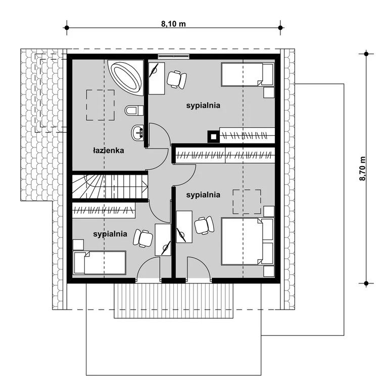
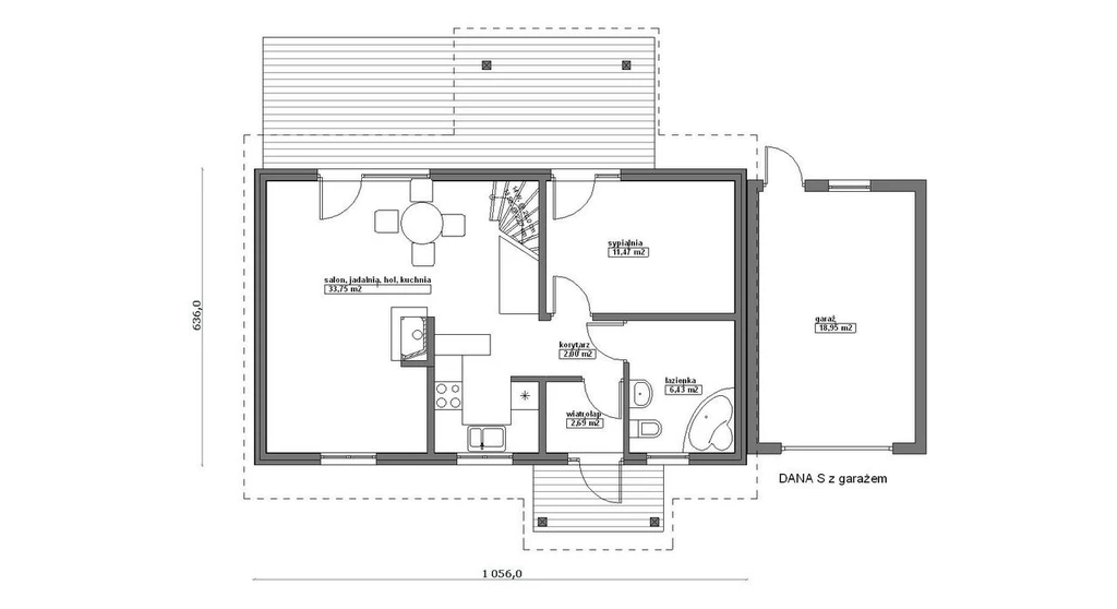
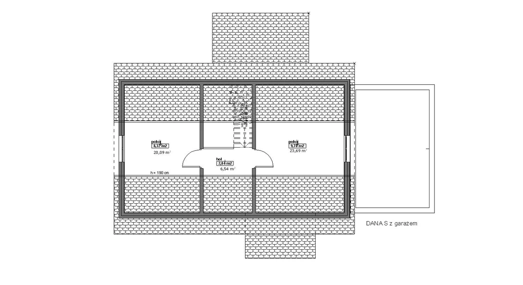
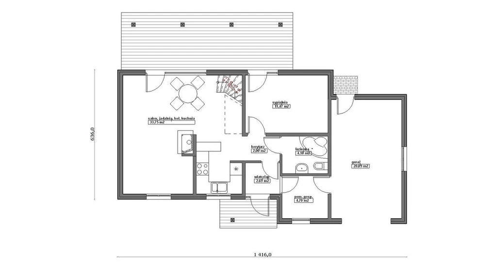
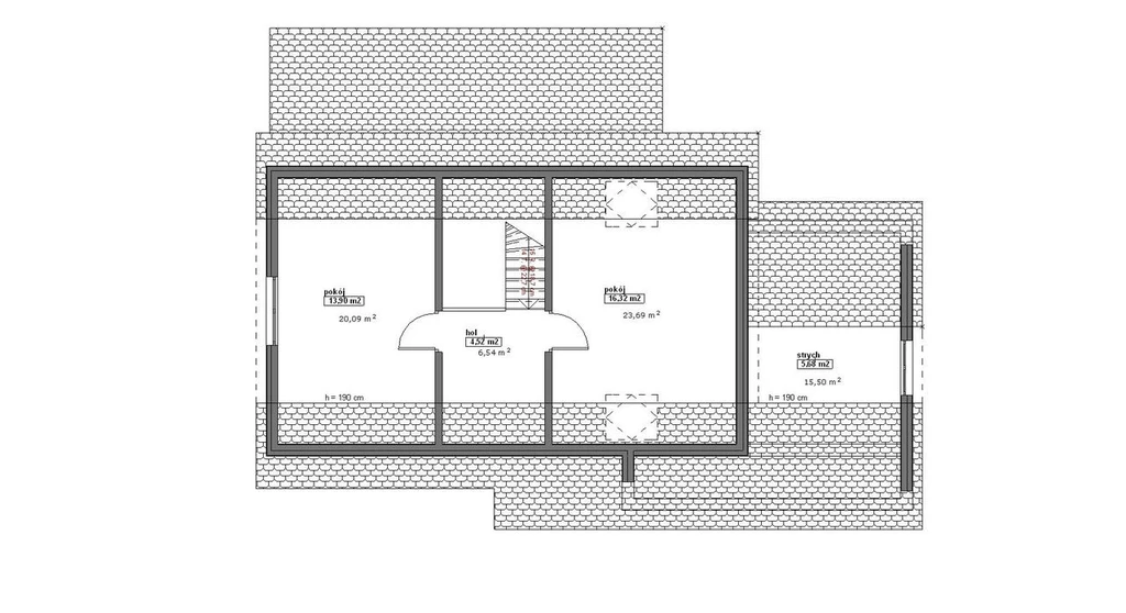
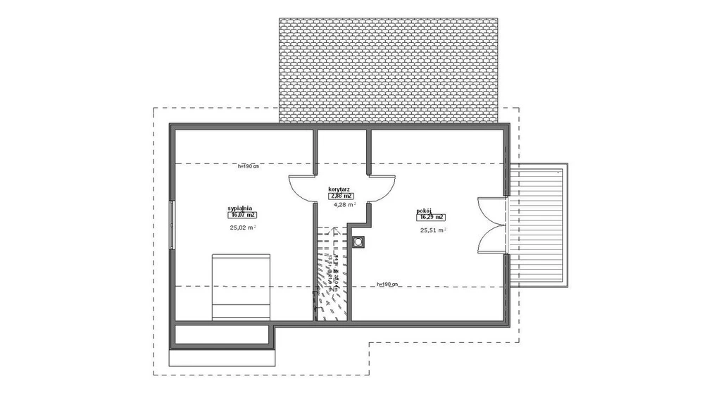
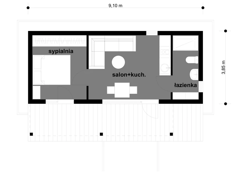
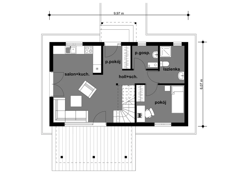
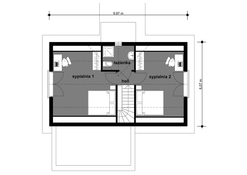
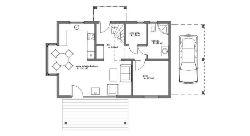
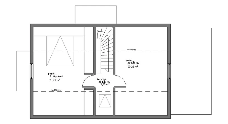
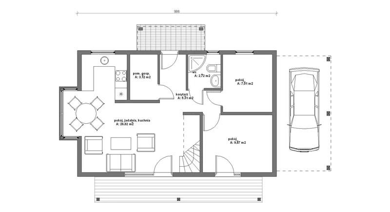
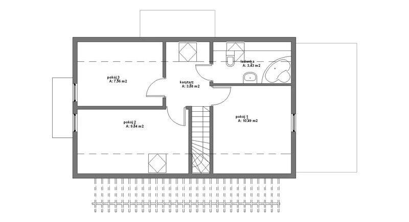
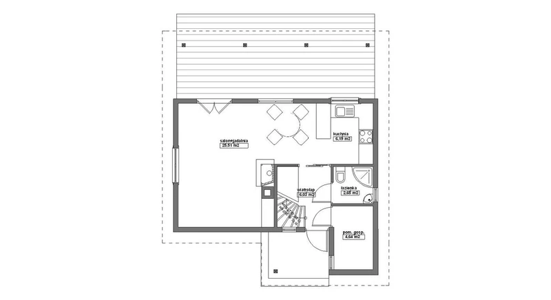
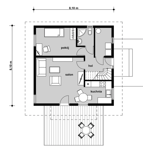
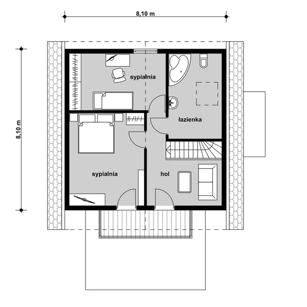
Wrocław to miejsce, gdzie nowoczesne domy energooszczędne stają się coraz bardziej popularne. Dzięki zastosowaniu zaawansowanych technologii mieszkańcy mogą cieszyć się niższymi rachunkami za energię oraz wyższym komfortem życia. PROEKOART oferuje opcje dostosowane do indywidualnych potrzeb klientów, zapewniając jednocześnie dbałość o środowisko. Oferowane domy są dostępne w różnych rozmiarach i konfiguracjach, co pozwala na ich idealne dopasowanie do potrzeb każdej rodziny. Możliwość wyboru liczby pokoi oraz dodatkowych pomieszczeń sprawia, że każdy projekt jest unikalny. Dzięki temu każdy klient może znaleźć dom spełniający jego oczekiwania.
Energooszczędne domy wyróżniają się zastosowaniem najnowszych technologii, które minimalizują zużycie energii. Wysokiej jakości materiały izolacyjne oraz nowoczesne systemy wentylacyjne zapewniają optymalną temperaturę przez cały rok. Dodatkowo wykorzystanie odnawialnych źródeł energii przyczynia się do ochrony środowiska.
Domy energooszczędne w woj. dolnośląskim
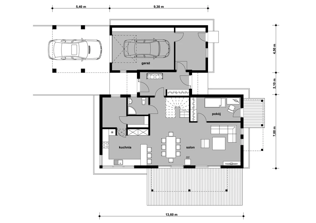
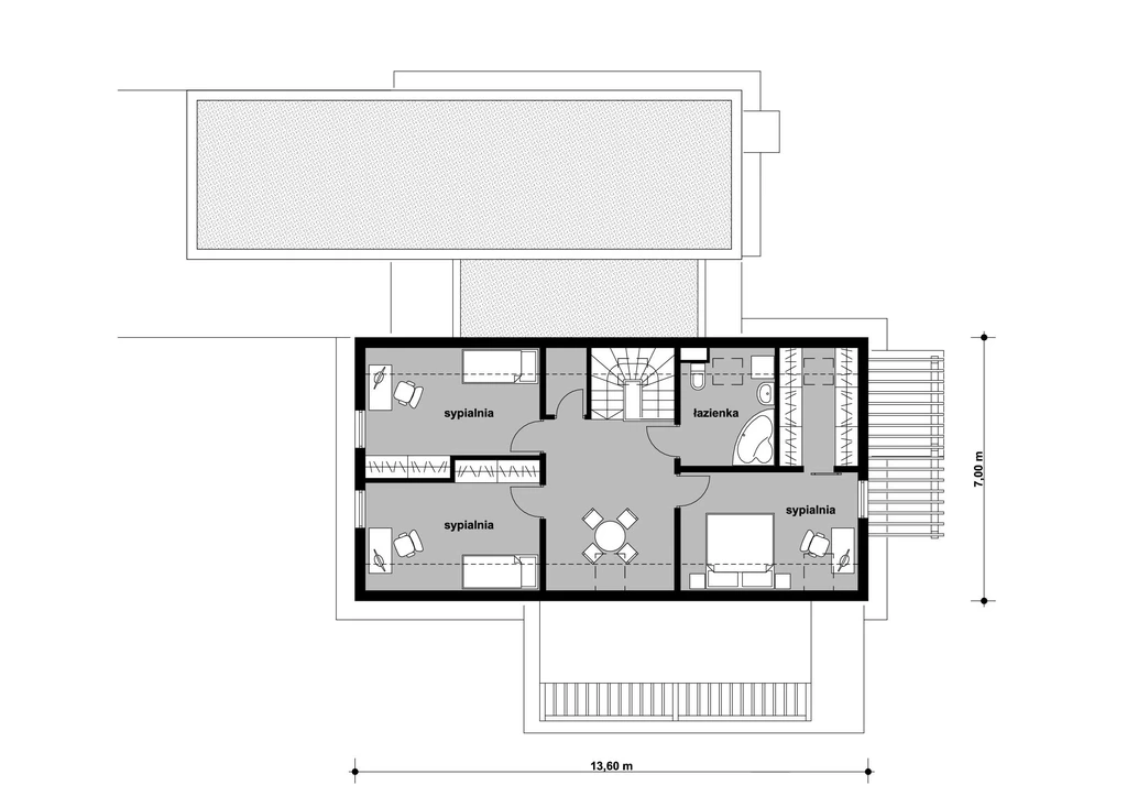
W województwie dolnośląskim rośnie zainteresowanie budową domów energooszczędnych, które łączą nowoczesność z ekologią. Inwestorzy coraz częściej wybierają elementy, które nie tylko obniżają koszty eksploatacji, ale także zwiększają wartość nieruchomości. PROEKOART oferuje kompleksową obsługę inwestycji na każdym etapie budowy. Technologia szkieletowa stosowana przez nas to gwarancja trwałości i efektywności energetycznej. Dzięki drewnianemu szkieletowi wypełnionemu izolacją termiczną domy te charakteryzują się doskonałą szczelnością i niskim zużyciem energii. Dodatkowe systemy takie jak rekuperacja i pompy ciepła zwiększają komfort użytkowania.
Długofalowe korzyści z posiadania domu energooszczędnego obejmują znaczne oszczędności na rachunkach za ogrzewanie i prąd. Ponadto mieszkańcy mogą cieszyć się lepszą jakością powietrza wewnątrz budynku oraz stabilną temperaturą przez cały rok. Inwestycja w taki dom to także wzrost wartości nieruchomości na rynku.
Jak wygląda proces budowy domu energooszczędnego?
Budowa domu energooszczędnego rozpoczyna się od szczegółowego planowania i projektowania zgodnie z wymaganiami klienta. Po zatwierdzeniu projektu następuje etap przygotowania terenu oraz fundamentów pod budowę. Proces ten jest kluczowy dla zapewnienia stabilności całego budynku. Kolejnym krokiem jest montaż drewnianego szkieletu oraz instalacja systemów izolacyjnych i wentylacyjnych. Dzięki precyzyjnemu wykonaniu tych prac domy osiągają wysokie parametry energooszczędności. Zastosowanie odnawialnych źródeł energii dodatkowo zwiększa ich efektywność. Ostatnim etapem jest wykończenie wnętrz oraz instalacja systemów grzewczych i elektrycznych. Klienci mają możliwość wyboru spośród różnych opcji wykończenia, co pozwala na personalizację przestrzeni zgodnie z ich preferencjami. Cały proces budowy trwa jedynie kilka miesięcy, co czyni go szybkim i efektywnym.
Kiedy warto wybrać dom energooszczędny?
Decyzja o wyborze domu energooszczędnego jest szczególnie korzystna dla osób ceniących sobie niskie koszty eksploatacji oraz dbałość o środowisko. Tego typu budynki są idealnym rozwiązaniem dla rodzin, które pragną mieszkać w komfortowych warunkach przy jednoczesnym ograniczeniu zużycia energii. Inwestycja w dom energooszczędny to także sposób na zwiększenie wartości nieruchomości na rynku.
Domy energooszczędne to doskonała opcja dla tych, którzy chcą zainwestować w przyszłość i cieszyć się długoterminowymi oszczędnościami. Wybór takiego rozwiązania pozwala na znaczne obniżenie rachunków za ogrzewanie i prąd oraz poprawę jakości życia dzięki lepszej izolacji termicznej i nowoczesnym systemom wentylacyjnym.



































































































































































































































































































































